SELENIUM MTK - MEP

Детали проекта

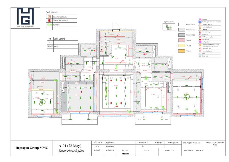
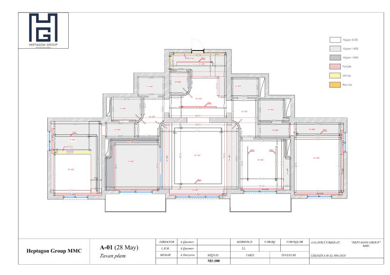
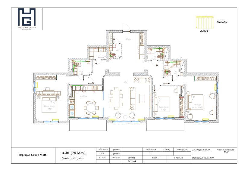
Selenium MTK – Инженерные системы (MEP) MEP-системы проекта Selenium MTK разработаны с учетом требований надежной эксплуатации, энергоэффективности и функциональной устойчивости жилого здания. Инженерные решения выполнены в полной координации с архитектурно-планировочной структурой объекта. Системы отопления и вентиляции рассчитаны на обеспечение нормативных параметров микроклимата в жилых и общих зонах. Электроснабжение и слаботочные системы спроектированы с учетом требований безопасности, распределения нагрузок и бесперебойной работы. Системы водоснабжения и канализации обеспечивают стабильную эксплуатацию здания в условиях постоянного жилого использования. Концепция MEP и техническая координация выполнены компанией Heptagon Group, что позволило сформировать целостную и нормативно выверенную инженерную инфраструктуру.

Категория: Инженерные системы MEP
Клиент:
Дата начала проекта: 07.01.2025
Дата окончания проекта: 07.02.0225

Похожие проекты

Группа Heptagon разработала и реализовала разнообразные проекты, включая роскошные отели, современные жилые комплексы и инновационные коммерческие пространства. Каждый проект сочетает функциональность с эстетическим совершенством, отражая нашу приверженность качеству и видению клиента. Мы продолжаем создавать среды, которые вдохновляют, объединяют и сохраняются.

Loading...