28 BEAUTY CENTER - MEP

Детали проекта

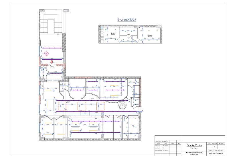
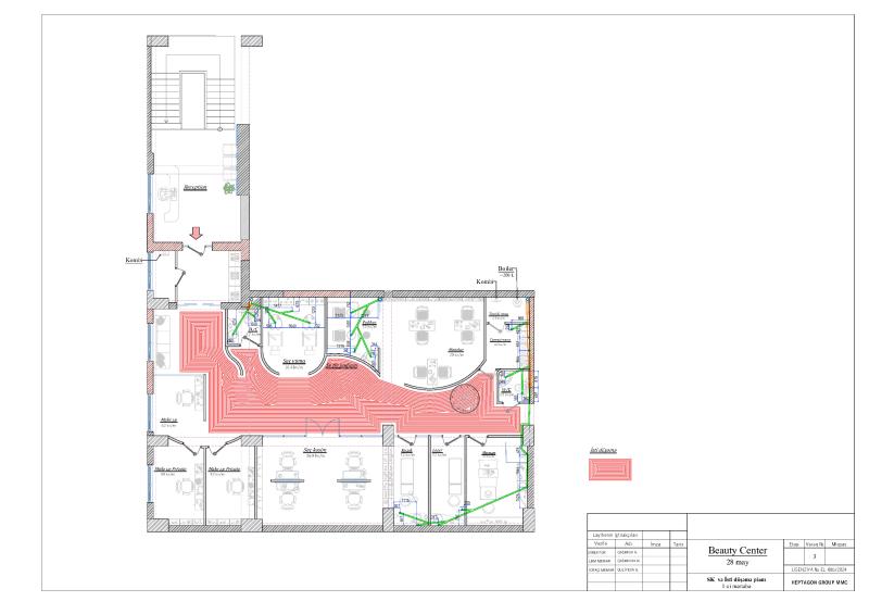
Beauty Center – Инженерные системы (MEP) MEP-решения проекта Beauty Center разработаны с учетом требований надежности, энергоэффективности и удобства эксплуатации. Инженерные системы полностью интегрированы в архитектурную структуру объекта, обеспечивая техническую устойчивость и функциональную целостность пространства. Системы вентиляции и кондиционирования спроектированы в соответствии с санитарно-гигиеническими нормами и функциональным назначением помещений. Электроснабжение и освещение выполнены с учетом требований безопасности, энергоэффективности и эксплуатационного баланса. Системы водоснабжения и канализации обеспечивают стабильную и бесперебойную работу объекта. Инженерная концепция и техническая координация MEP-систем выполнены компанией Heptagon Group, что позволило создать оптимизированную и нормативно выверенную инженерную инфраструктуру.

Категория: Инженерные системы MEP
Клиент:
Дата начала проекта: 07.08.2025
Дата окончания проекта: 08.09.2025

Похожие проекты

Группа Heptagon разработала и реализовала разнообразные проекты, включая роскошные отели, современные жилые комплексы и инновационные коммерческие пространства. Каждый проект сочетает функциональность с эстетическим совершенством, отражая нашу приверженность качеству и видению клиента. Мы продолжаем создавать среды, которые вдохновляют, объединяют и сохраняются.

Loading...