28 BEAUTY CENTER - MEP

Project Details

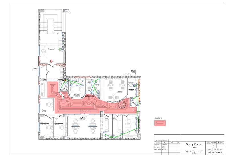
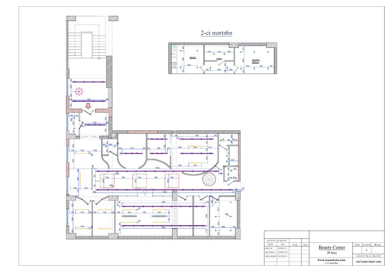
Beauty Center – MEP (Mechanical, Electrical & Plumbing) Systems

The MEP systems of the Beauty Center project were designed with a focus on reliability, energy efficiency, and operational performance. Mechanical, electrical, and plumbing solutions are fully integrated with the architectural layout, ensuring technical stability and functional coherence of the space.

HVAC systems were developed in compliance with sanitary and environmental standards, providing appropriate indoor climate conditions for each functional zone. Electrical supply and lighting systems were planned to meet safety requirements, energy balance, and ease of operation. Plumbing and drainage systems ensure continuous and stable service throughout the facility.

The MEP concept and technical coordination were carried out by Heptagon Group, resulting in a technically optimized and regulation-compliant engineering infrastructure.

Category: MEP Engineering
Customer:
Project Start Date: 07.08.2025
Project End Date: 07.09.2025

Related Projects

Heptagon Group has designed and delivered a diverse range of projects, including luxury hotels, modern residential complexes, and innovative commercial spaces. Each project combines functionality with aesthetic excellence, reflecting our commitment to quality and client vision. We continue to shape environments that inspire, connect, and endure.

Testimonial

KONTAKT HOME KONTAKT HOME
SEA BREEZE SEA BREEZE
Loading...