SELENIUM MTK - MEP

Layihə haqqında

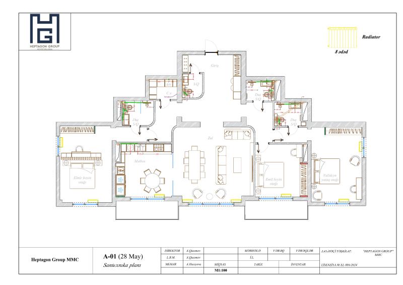
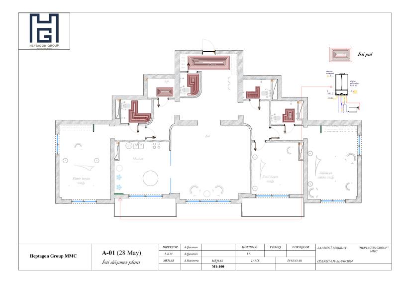
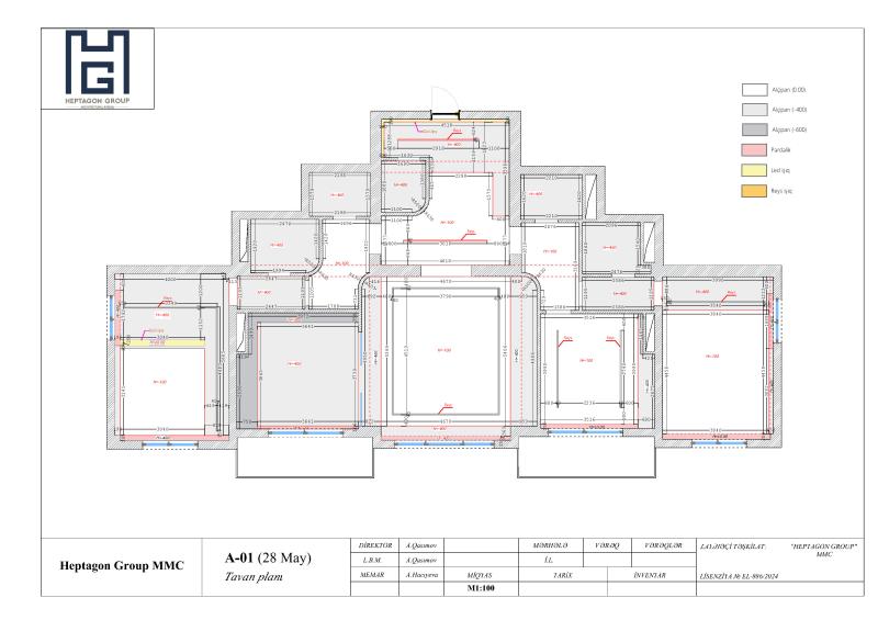
Selenium MTK – MEP (Mühəndis Sistemləri) Həlləri Selenium MTK layihəsinin MEP sistemləri yaşayış binasının istismar etibarlılığı, enerji səmərəliliyi və uzunmüddətli dayanıqlığı nəzərə alınmaqla layihələndirilmişdir. Mexaniki, elektrik və santexniki sistemlər memarlıq-planlaşdırma həlləri ilə koordinasiyalı şəkildə inteqrasiya edilmişdir. Havalandırma və istilik sistemləri mənzillər və ümumi istifadə sahələri üzrə normativ mikroiqlim parametrlərini təmin edəcək şəkildə hesablanmışdır. Elektrik təchizatı və zəif axın sistemləri təhlükəsizlik, yük balansı və fasiləsiz istismar prinsiplərinə əsaslanır. Su təchizatı və kanalizasiya sistemləri isə yaşayış binasının funksional intensivliyinə uyğun olaraq stabil və davamlı işləmə prinsipi ilə həll edilmişdir. Layihənin MEP konsepsiyası və texniki koordinasiyası Heptagon Group tərəfindən həyata keçirilmiş, nəticədə müasir standartlara cavab verən kompleks mühəndis infrastrukturu formalaşdırılmışdır.

Kateqoriya: MEP mühəndisliyi
Müştəri:
Layihənin başladığı tarix: 07.01.2025
Layihənin bitiş tarixi: 07.02.2025

Oxşar layihələr

Delectus voluptatum distinctio quos eius excepturi sunt pariatur, aut, doloribus officia ea molestias beatae laudantium, quam odio ipsum veritatis est maiores velit quasi blanditiis et natus accusamus itaque.

Loading...