28 BEAUTY CENTER - MEP

Layihə haqqında

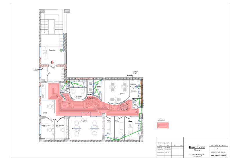
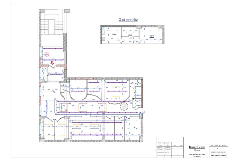
Beauty Center – MEP (Mühəndis Sistemləri) Konsepsiyası Beauty Center layihəsinin MEP həlləri funksional etibarlılıq, enerji səmərəliliyi və istismar rahatlığı prinsipləri əsasında hazırlanmışdır. Mexaniki, elektrik və santexniki sistemlər memarlıq planlaşdırması ilə tam inteqrasiya olunaraq məkanın texniki dayanıqlığını təmin edir. Havalandırma və iqlimləndirmə sistemləri sanitar-gigiyenik normalara uyğun şəkildə layihələndirilmiş, məkanın funksional zonalarına uyğun mikroiqlim yaradılmışdır. Elektrik təchizatı və işıqlandırma sistemləri təhlükəsizlik, enerji balansı və rahat istismar tələbləri nəzərə alınmaqla planlaşdırılmışdır. Su təchizatı və kanalizasiya həlləri isə fasiləsiz və stabil xidmət prinsipləri əsasında qurulmuşdur. Layihənin MEP konsepsiyası və texniki koordinasiyası Heptagon Group tərəfindən icra edilmiş, nəticədə funksional baxımdan optimallaşdırılmış və normativ tələblərə cavab verən mühəndis infrastrukturu formalaşdırılmışdır.

Kateqoriya: MEP mühəndisliyi
Müştəri:
Layihənin başladığı tarix: 07.08.2025
Layihənin bitiş tarixi: 07.09.2025

Oxşar layihələr

Delectus voluptatum distinctio quos eius excepturi sunt pariatur, aut, doloribus officia ea molestias beatae laudantium, quam odio ipsum veritatis est maiores velit quasi blanditiis et natus accusamus itaque.

Loading...