Selenium MTK – Renovation

Детали проекта

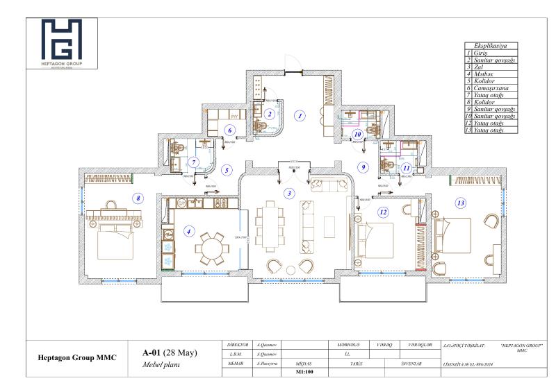
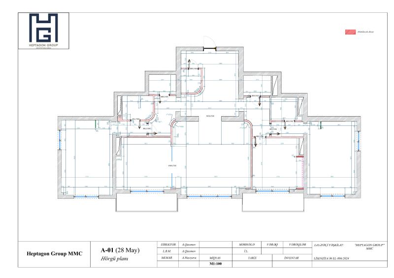
Selenium MTK – Концепция интерьерного дизайна Интерьерный дизайн проекта Selenium MTK разработан в соответствии с современными требованиями к жилой среде многоквартирного дома. Концепция основана на сочетании комфорта, визуальной сдержанности и функциональной гибкости пространства. Планировочные решения отличаются логичностью и четкой пространственной структурой. В интерьере преобладают чистые линии, выверенные пропорции и спокойная цветовая гамма. Подбор материалов ориентирован на долговечность, эстетическую устойчивость и повседневный комфорт. Минималистичный подход к деталям формирует легкое и уравновешенное интерьерное пространство. Освещение разработано как многоуровневая система, подчеркивающая объемно-пространственные решения и повышающая качество жилой среды. Гармоничное сочетание естественного и искусственного света придает интерьерам динамику и уют. Концепция интерьерного дизайна и пространственные решения выполнены компанией Heptagon Group.

Категория: Ремонт
Клиент:
Дата начала проекта: 07.01.2025
Дата окончания проекта: 10.02.2025

Похожие проекты

Группа Heptagon разработала и реализовала разнообразные проекты, включая роскошные отели, современные жилые комплексы и инновационные коммерческие пространства. Каждый проект сочетает функциональность с эстетическим совершенством, отражая нашу приверженность качеству и видению клиента. Мы продолжаем создавать среды, которые вдохновляют, объединяют и сохраняются.

Loading...