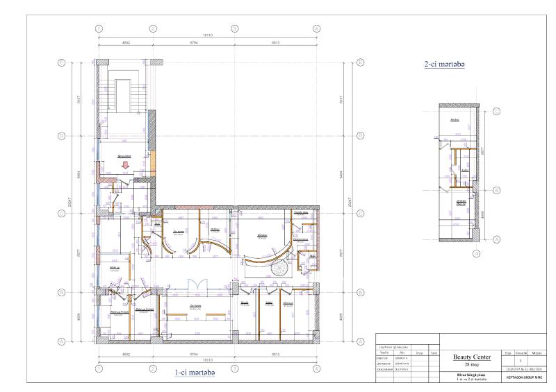
Beauty Center – Архитектурная и интерьерная концепция Проект Beauty Center представляет собой современный центр красоты, сформированный на основе рациональных архитектурно-планировочных решений и четкой пространственной структуры. Планировочная схема разработана с учетом логики сервисных процессов и оптимального распределения функциональных зон. Интерьер построен на сдержанной цветовой палитре, нейтральных материалах и минималистичном подходе к деталям. Система освещения интегрирована в архитектуру пространства и подчеркивает объемно-пространственные решения, формируя комфортную и профессиональную среду. Архитектурная концепция, интерьерные решения и техническая координация проекта выполнены компанией Heptagon Group. В результате создан целостный, функционально выверенный и эстетически сбалансированный объект.
Группа Heptagon разработала и реализовала разнообразные проекты, включая роскошные отели, современные жилые комплексы и инновационные коммерческие пространства. Каждый проект сочетает функциональность с эстетическим совершенством, отражая нашу приверженность качеству и видению клиента. Мы продолжаем создавать среды, которые вдохновляют, объединяют и сохраняются.