Selenium MTK – Renovation

Project Details

Selenium MTK – Interior Design Concept

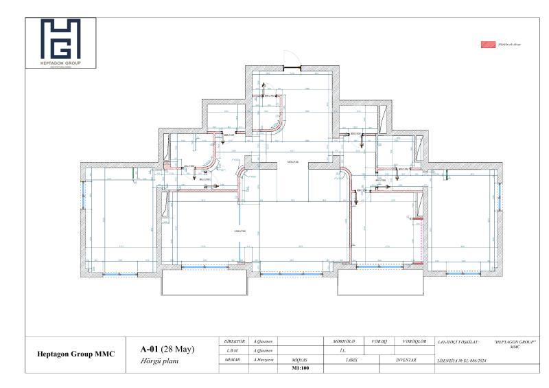
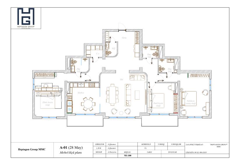
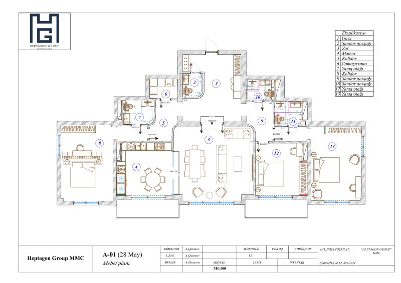
The interior design of the Selenium MTK project is developed in response to contemporary standards of multi-residential living. The concept combines comfort, visual restraint, and functional adaptability, resulting in well-structured and clearly articulated living spaces.

The interiors are defined by clean lines, balanced proportions, and a calm, neutral color palette. Material selection emphasizes durability, aesthetic longevity, and everyday comfort. A refined, minimalist approach to detailing creates a light and well-balanced interior atmosphere.

The lighting concept is designed as a multi-layered system that enhances spatial composition and improves the overall quality of the living environment. The balanced interaction of natural and artificial light adds depth, warmth, and a dynamic character to the interiors.

The interior design concept and spatial solutions were developed by Heptagon Group.

Category: Renovation
Customer:
Project Start Date: 07.01.2025
Project End Date: 10.02.2025

Related Projects

Heptagon Group has designed and delivered a diverse range of projects, including luxury hotels, modern residential complexes, and innovative commercial spaces. Each project combines functionality with aesthetic excellence, reflecting our commitment to quality and client vision. We continue to shape environments that inspire, connect, and endure.

Testimonial

KONTAKT HOME KONTAKT HOME
SEA BREEZE SEA BREEZE
Loading...