28 BEAUTY CENTER

Layihə haqqında

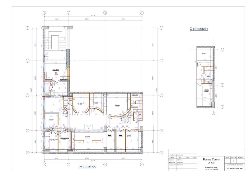
Beauty Center – Memarlıq və İnteryer Konsepsiyası Beauty Center layihəsi müasir memarlıq yanaşması əsasında formalaşdırılmış, funksional planlaşdırma və təmiz həcm həlləri ilə səciyyələnən gözəllik mərkəzidir. Məkan strukturu xidmət proseslərinin ardıcıllığını təmin edən rasional zonalaşdırma prinsiplərinə əsaslanır və istifadəçi axınlarının optimal təşkilini hədəfləyir. İnteryer həllərində neytral rəng palitrası, sakit fakturalar və minimalist material seçimi tətbiq olunmuşdur. İşıqlandırma sistemi memarlıq elementlərini vurğulayan, eyni zamanda komfortlu vizual mühit yaradan inteqrasiya olunmuş həll kimi layihələndirilmişdir. Hər bir detal məkanın funksional təyinatına uyğun olaraq balanslaşdırılmışdır. Layihənin memarlıq-planlaşdırma konsepsiyası, interyer dizaynı və texniki koordinasiyası Heptagon Group tərəfindən icra edilmişdir. Nəticədə müasir tələblərə cavab verən, estetik və funksional baxımdan vahid memarlıq məkanı formalaşdırılmışdır.

Kateqoriya: Memarlıq
Müştəri:
Layihənin başladığı tarix: 07.08.2025
Layihənin bitiş tarixi: 07.09.2025

Oxşar layihələr

Delectus voluptatum distinctio quos eius excepturi sunt pariatur, aut, doloribus officia ea molestias beatae laudantium, quam odio ipsum veritatis est maiores velit quasi blanditiis et natus accusamus itaque.

Loading...